0 .前言
随着经济、科技的迅猛发展,人们开始追求建筑设施的人性化、舒适化,大量高层特大型建筑,及地下建筑的涌现导致建筑物通道更长、更复杂。随着人们安全意识的提高,本着以人为本、生命安全为重的想法,对于人员密集、疏散距离长、疏散通道多、拐弯多、环境复杂的建筑,采用传统的疏散指示方式不能及时对灯具进行维护管理,火灾发生时,对人员的疏散和逃生无法进行有效的指引,故而实施迅速有效的安全疏散系统,引导人员的及时逃生是避免造成群死群伤的重要措施,这样集中控制型应急照明和疏散指示系统应运而生。
集中控制型应急照明和疏散指示系统可准确实现对各应急灯具的实时监控和控制、日常24小时管理维护,保证系统运行正常,在发生火灾时安全、准确、迅速的引导人员到达安全区域,减少人员伤亡。
1.行业介绍
1.1行业背景
医疗行业是一个与居民生命和健康息息相关的产业,现代的医院建筑更趋于高层化、大型化及复杂化,是所有建筑中使用功能较复杂、安全性要求较高的建筑之一。医院属于社会公共型服务场所,病人弱势群体集中、人流量大,楼宇内通道相连复杂,被褥、纸张、化学药剂等易燃物品多。医院内各类医疗设备众多用电负荷大,社会医疗机构迅猛发展,帮助人们出去病痛,但存在的许多安全隐患也不容我们忽视,一旦发生火灾,必会造成巨大的财产损失和人员伤亡。
1.2行业标准
《消防应急照明和疏散指示系统技术规范》GB51309-2018
《消防应急照明和疏散指示系统》GB17945-2010
《建筑设计防火规范》GB50016-2014
《医院洁净手术部建筑技术规范》GB50333-2013
《医疗建筑电气设计规范》JGJ312-2013
《综合医院建筑设计规范》GB51039-2014
1.3区域划分及区域特点
根据医院建筑内不同的区域对应急照明和疏散指示的需求程度可划分为三大区域,如某医院的建筑划分:
1.常规区域:如医院内办公楼、生活宿舍楼、住院楼等,区域内对应急疏散灯具无特殊需求。
2.人员流动区:该区域一般为挂号、缴费大厅,区域内人流量大,地方空旷,人员对建筑结构陌生,疏散时对疏散指示系统的依赖性高。
3.洁净区:对处于该区域内的设备有一定的洁净需求,如手术部内的洁净通道。

2.项目介绍
2.1项目简介
本项目是医院项目,设有内科、外科、骨伤科、肛肠科、妇科、儿科等科室,分为急诊大楼、门诊大楼与住院楼等建筑大楼。本司负责该医院二期项目中急诊内科住院楼,包括其地下建筑,多为常规区域与人员流动区域。要求各场所内应急疏散标志采用消防应急疏散指示系统,当火灾消防或应急发生时,可通过火灾监控系统的烟感探头等检测到具体的火灾位置,并以通信方式将指令传输至本系统的消防主机,以控制场所内疏散标志的箭头指向,确保人员沿正确的方向逃生及疏散。
2.2项目难点、特殊点
医院建筑区内建筑密高、部门划分多,内部防火分区多,灯具回路复杂,消防应急照明和疏散指示系统如何布置
住院楼病人在紧急情况发生时疏散速度要比其他场所缓慢,一些特殊情况的病人还需要担架或挽扶缓慢离开,对于该区域的疏散照明,应急时间的确定
2.3项目选型
2.3.1应急照明控制器

2.3.2应急照明集中电源

2.3.3灯具


2.4系统组网图

2.5现场部分系统图

地下五层a区配电平面图

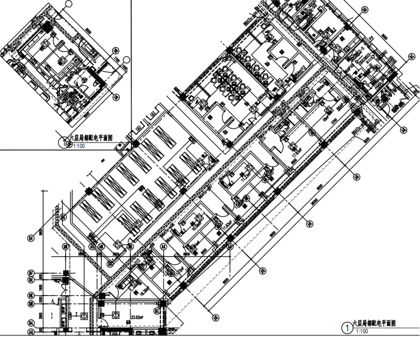
六层局部配电平面图

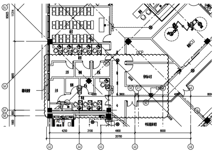
五层局部智能疏散照明,配电箱通讯平面图
2.6现场应用照片




3.系统方案介绍
3.1方案拓扑

结合本医院住院楼项目,住院楼包括常规区域与人员流动区,通常一层为挂号与收费区,人流较大,对疏散标志的要求多为发生紧急情况时,在现场混乱的情况下能清晰可见。其余楼层均为不同科室的住院病房,人员多为医护人员、病患、陪护人员,综合考虑病患的行动能力,适当延长灯具的应急时间。住院大楼存在楼梯间及不常开放区域,考虑节能需求,适当安装感应灯具。
3.2系统软件运行界面及功能
系统运行主界面

包含工具栏、平面展示、图层列表、状态栏,可以直观的查看监控设备的运行状态,并根据状态栏的现实内容直接切换至故障具体位。
灯具配置界面

可以查看所有灯具状态与数量
事件记录界面

可查看历史操作、故障信息,可按日期进行查询
3.3区域产品使用需求

3.4系统组成
消防应急照明与疏散指示系统由控制器(主机)、集中电源/配电箱和灯具(疏散指示灯具、应急照明灯具)等几部分组成。

控制器是消防应急照明和疏散指示系统的系统主机。控制器通过总线网络实时监控各个终端,可以实时上报每个设备及灯具故障。在险情发生时,自动将信息指令发布到每个终端,终端收到指令之后开始工作,如频闪、开、灭灯等工作,实时指示安全的疏散路线。
集中电源是安装在建筑物内的备用集中式应急电源装置。当建筑物发生火灾、事故或其他紧急情况时,应急电源可以为消防标志灯、照明灯提供应急供电,保证消防应急照明和疏散指示正常工作。
配电箱是安装在建筑物内的提供电源装置。当建筑物发生火灾、事故或其他紧急情况时,配电箱可以为消防标志灯、照明灯供电,保证消防应急照明和疏散指示系统正常工作。
应急照明灯具为人员疏散逃生提供照明。其安装方式有壁挂式、吸顶式、嵌顶式。
疏散指示灯具为人员疏散逃生指引方向,左向、右向和双向的标志灯具一般用于指示疏散的走向,无方向的标志灯具一般用于指示安全出口、楼层和避难间。其安装方式有壁挂式、吊挂式、地埋式。
4.结束语
随着我国经济的快速发展,科技的进步,建筑智能化及建筑消防的重视程度也随之提高,本文简单介绍了医院行业以及本司在医院行业的消防应急疏散指示系统方案,并结合已完成项目分析了该方案在实际项目中的应用,充分展现了在该类项目的组网中简单、灵活、稳定、低成本的优势。通过消防应急疏散指示系统能够解决传统消防应急疏散指示系统无集中控制、指示方向固定、疏散线路不能改变、指示效果不理想、安全性能低等问题。
安科瑞电气着力打造各类火灾安防系统的产品,在满足国家行业标准要求的前提下,为各类建筑提供智能、高效、节能、廉价的消防方案与消防产品,为防火减灾、保障人民生命财产安全方面尽一份力!
参考文献
[1].安科瑞电气股份有限公司产品选型手册.2018.01
[2].GB50116-2014建筑设计防火规范[S].
[3].GB17945-2010《消防应急照明和疏散指示系统》[S].
[4].GB51309-2018《消防应急照明和疏散指示系统技术标准》[S].
本文地址: https://www.xsyiq.com/50161.html
网站内容如侵犯了您的权益,请联系我们删除。